CONSIDERA SOLO ORA DELLE SOLUZIONI DI MINIMA
- Riprendi adesso il disegno di rilievo completo delle pareti interne esistenti (il primo disegno fatto), fanne una copia e comincia a lavorarci. Cerca di capire se, salvando qualche parete tra quelle esistenti, (pareti che in un primo tempo avevi ignorato), riesci a ottenere delle soluzioni altrettanto soddisfacenti.
7 AVANTI AVANTI
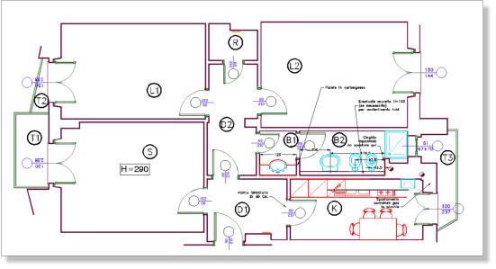
Progetto di minima ottenuto semplicemente modificando il bagno e spostando la porta della cucina
- Riprendi adesso il disegno di rilievo completo delle pareti interne esistenti (il primo disegno fatto), fanne una copia e comincia a lavorarci. Cerca di capire se, salvando qualche parete tra quelle esistenti, (pareti che in un primo tempo avevi ignorato), riesci a ottenere delle soluzioni altrettanto soddisfacenti.
7
Progetto di minima ottenuto semplicemente modificando il bagno e spostando la porta della cucina
CONSIDERA SOLO ORA DELLE SOLUZIONI DI MINIMA
AVANTI AVANTI RIVOLGITI ALL’ARCHITETTO RIVOLGITI ALL’ARCHITETTO